Piso en Venta en Madrid - Madrid
- 0 m2
- 3 habitaciones
- 0 baños
- 0,00 €/m2
- 190.000 €
- Avísame si baja
última modificación 27-03-2024 a las 15:44

Esté anuncio se ha visto 1297 veces
Caracteristicas generales
Otros comentarios:
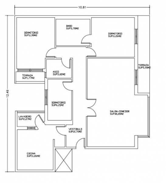
Piso amplio con una distribución muy practica, luminoso y totalmente exterior, consta de Armario empotrado en la entrada, con espejo incorporado, 2 Habitaciones individuales con carpintería y persiana reformadas y con armarios empotrados, 1 Habitación principal también con mucha luz y su correspondiente armario empotrado. Amplio Salón con Galería de terraza incorporada, cerrada en su totalidad. Baño completo reformado, y la cocina independiente muy cuadrada equipada totalmente menos frigorífico. Buena ubicación para transportes públicos tanto Bus como metro, con dotacion de centros e... Leer más
Piso amplio con una distribución muy practica, luminoso y totalmente exterior, consta de Armario empotrado en la entrada, con espejo incorporado, 2 Habitaciones individuales con carpintería y persiana reformadas y con armarios empotrados, 1 Habitación principal también con mucha luz y su correspondiente armario empotrado. Amplio Salón con Galería de terraza incorporada, cerrada en su totalidad. Baño completo reformado, y la cocina independiente muy cuadrada equipada totalmente menos frigorífico. Buena ubicación para transportes públicos tanto Bus como metro, con dotacion de centros escolares, de Mayores, Ambulatorios, y cerca la salida de la carretera Barcelona, M30 y M40.
Tu solicitud ha sido enviada correctamente!